NEW!貸倉庫 愛宕町五丁目 賃料13.75万円/月額
Comment
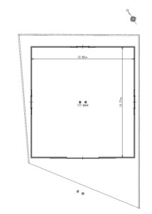
◇延べ床面積 約177.90㎡(53.80坪)!!
◆駐車スペース1台あり!(賃料に含む)
◇天井高 約3.6m!
即内覧可能!業種・使用用途・条件等ご相談お待ちしております!
※敷金:明渡し時50%償却(課税対象)
※更新手数料:33,000円/2年毎(税込)必要となります。
※塗装業・自動車業・火器を取り扱う業種・近隣に騒音や臭いトラブルが発生しそうな業種は不可となります。
価格・住所・交通
| 賃料 | 13.75万円 |
|---|---|
| 所在地 | 愛知県津島市愛宕町五丁目5番 |
| 最寄駅 | ■名鉄尾西線「日比野」駅 徒歩約12分 ■名鉄津島線・尾西線「津島」駅 徒歩約15分 |
設備・概要
建物面積 177.90㎡ / 建物構造 鉄骨(S)工法 / 階建 1階建 / 階部分 1階 / 駐車場 1台 / 敷金 412500円 / 礼金 137500円 / 入居日 即日 / 築年月平成4年5月 / 取引形態 仲介 / 構造・こだわりポイント 1階部分 広々敷地 駐車場付き 保証会社利用 設備 照明器具
会社情報
| 会社名 | (株)イズミヤ |
|---|---|
| 電話番号 | 0567-24-0012 |
| ホームページ | https://izumiya-co.jp/company/ |
住宅・不動産・デザイナーズマンション総合サイト























