NEW!【SK BUILDING-1】504号室 津島市愛宕 ペット対応デザイナーズマンション
Comment
インターネット使用料無料!!Wi-Fi無料♪
契約時に、クリーニング費用38,500円(税込)・シリンダー交換料13,200円(税込)かかります。
小型犬・猫合わせて2匹まで飼育可能☆
(ペット飼育する場合は、賃料3,000円UP)
賃貸だからこそ、こだわりのお部屋に住んでみませんか?
打ちっ放しの壁面、照明に至るまでこだわっています(^^)/
3口のガスコンロで、お料理好きの方にもピッタリ!
価格・住所・交通
| 賃料 | 6.20万円 |
|---|---|
| 所在地 | 愛知県津島市愛宕町8-34-1 |
| 最寄駅 | 名鉄尾西線 日比野 [500m] 名鉄津島線 津島 [1400m] 名鉄尾西線 津島 [1400m] 名鉄尾西線 佐屋 [2530m] |
設備・概要
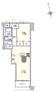
面積 49.34㎡ / 建物構造 鉄筋コンクリート(RC)工法4階建以上 / 階建 8階建 / 階部分 5階 / 駐車料金(税込) 5500円 / 共益費 7000円 / 敷金 無し円 / 礼金 124,000円 / 入居日 2026/05/15 / 築年月平成16年8月 / 取引形態 仲介 / 構造・こだわりポイント バス・トイレ別 インターネット接続可 ケーブルテレビ デザイナーズ ペット可 南向き 保証人不要 保証会社利用 敷金2ヶ月以内 眺望良好 陽当り良好 敷金 無し 設備 バストイレ別 バルコニー ガスコンロ クロゼット シャワー付洗面台 TVインターホン オートロック 室内洗濯置 シューズボックス システムキッチン 追焚機能浴室 温水洗浄便座 エレベーター 洗面所独立 洗面化粧台 3口以上コンロ 対面式キッチン 全居室洋室 南面バルコニー LDK12畳以上 宅配ボックス ダブルロックキー 敷地内ごみ置き場 平面駐車場
会社情報
| 会社名 | (株)イズミヤ |
|---|---|
| 電話番号 | 0567-24-0012 |
| ホームページ | https://izumiya-co.jp/company/ |
住宅・不動産・デザイナーズマンション総合サイト

































